Velkommen til Rennesøygata 10!
Haugesund
Kontorlokaler i Sakkestad Næringspark
Kontor
106 m2
Etter avtale
med megler
NØKKELINFO
- Eiendomstype
- Kontor
- Eierform
- Selveier
- Byggeår
- 2014
- Primærrom
- 0
- Bruksareal
- 0
- Bruttoareal
- 106
- Tomt
- 8112 m²
- Kommune
- Haugesund
- GNR
- 36
- BNR
- 645
- Oppdragsnr.
- 1-0387/25
- Finnkode
- 428790208
Beskrivelse
Klikk på de forskjellige punktene for å lese mer.
Kort om eiendommen
-Kontorfløy med cellekontor, møterom og åpent landskap
-Tilpasningsmuligheter
-Moderne kontorer i 3. etasje
Innhold
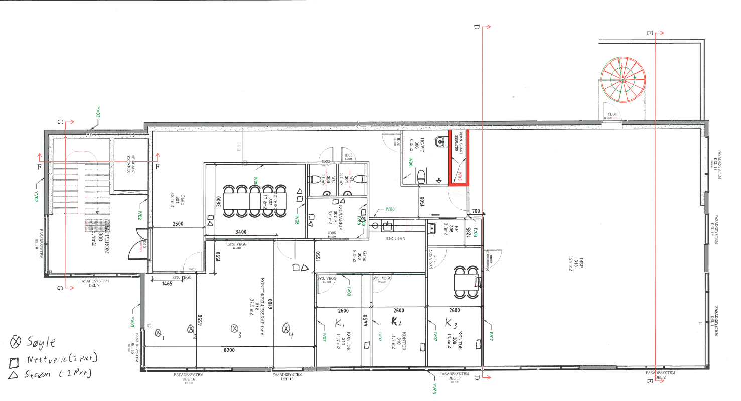
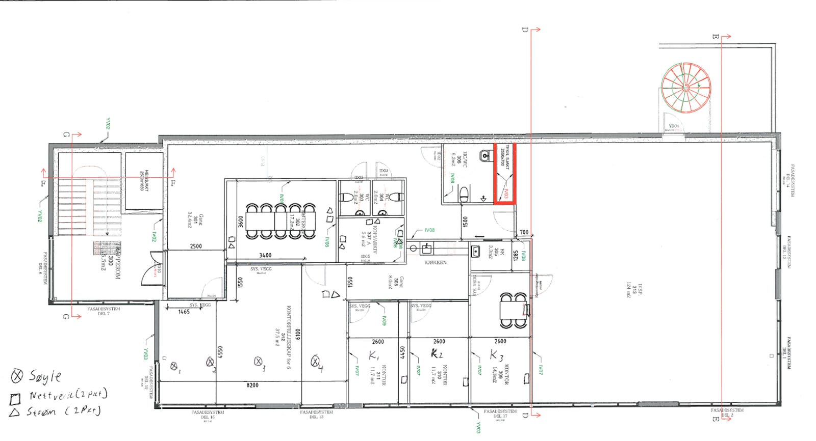
Lokalet har et samlet bruksareal på 106,5 m² og er godt tilrettelagt for kontorvirksomhet.
Det består av
-tre cellekontorer på henholdsvis 14,8 m², 11,7 m² og 11,7 m²,
-åpent kontorlandskap på 37,5 m²
-møterom på 17,2 m².
-gang med kjøkkenkrok på 8 m²
-kopirom på 5,6 m².
Planløsningen gir en god kombinasjon av private arbeidsplasser, felles arbeidsarealer og støttefunksjoner som møterom og kjøkken, noe som gjør lokalene fleksible og funksjonelle for både små og mellomstore bedrifter.
Fellesarealene har universell utforming med heis i et stort og lyst trapperom, samt to toaletter tilgjengelig på gangen, noe som gir god tilgjengelighet og brukervennlighet for alle.
Beliggenhet
Rennesøygata 10 ligger i et etablert næringsområde sør i Haugesund, nær Norheim og Raglamyr. med kort avstand til sentrum og gode forbindelser til resten av byen. Eiendommen er omgitt av ulike virksomheter, blant annet kontorer, servicebedrifter og serveringsstedeer, noe som gir et variert og levende nærmiljø. Beliggenheten gir enkel tilgang til daglige servicetilbud, og området har god infrastruktur med veiforbindelser mot E134 og øvrige bydeler. Dette gjør adressen attraktiv både for næringsvirksomhet og besøkende, samtidig som den er lett tilgjengelig for kunder, ansatte og samarbeidspartnere.
Parkering
Det er gode parkeringsmuligheter direkte utenfor bygget.
Kontakt
Morten Velde
- Stilling
- Næringsmeglerfullmektig MNEF
- E-post
- morten@meglerhuset-rele.no
- Telefon
- 41242278
Lurer du på noe?
"*" obligatorisk felt