Velkommen til Austigard 18!

Karmøy

Kontorlokaler under oppføring i Åkra sentrum til leie

Eiendomstype:
Kontor
Bruttoareal:
846 m2
Visning:
Etter avtale
med megler

NØKKELINFO

Eiendomstype
Kontor
Eierform
Selveier
Byggeår
2024
Bruksareal
802
Bruttoareal
846
Tomt
1400 m²
Kommune
Karmøy
GNR
15
BNR
657
Oppdragsnr.
1-0179/24
Finnkode
353313071

Beskrivelse

Klikk på de forskjellige punktene for å lese mer.

Kort om eiendommen

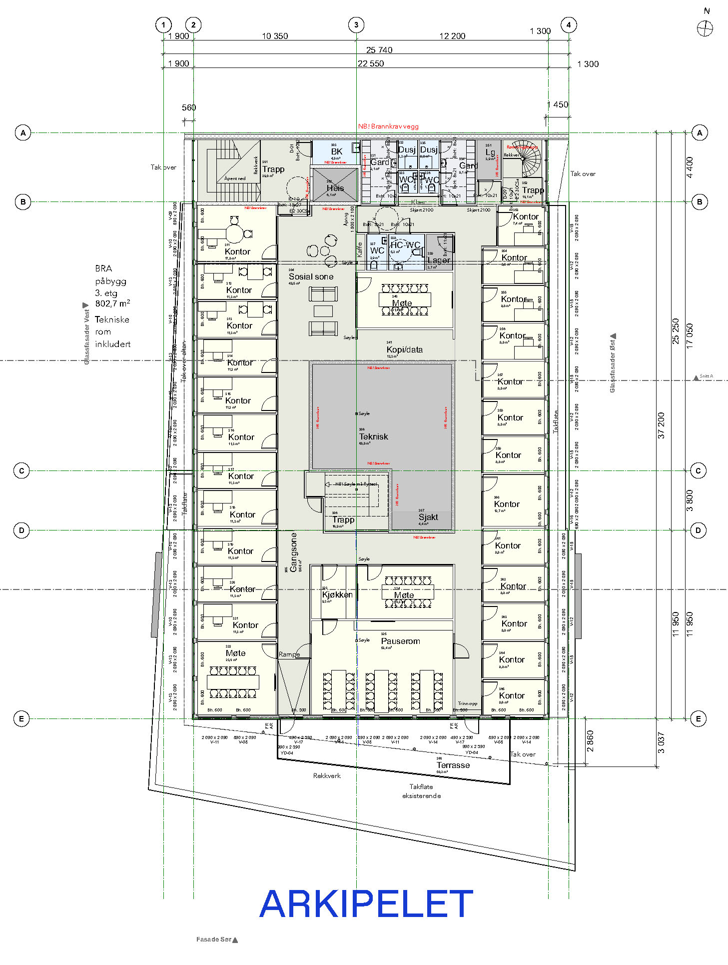
-Ferdigstilles juli 2024.
-Nye kontorlokaler i 3. etasje under oppføring.
-Sentral plassering i Åkra sentrum.
-846 m2 BTA kontorlokaler.
-Kan tilpasses etter leietakers ønske.

Innhold

Kontorlokalene er under oppføring og tomt lokale med tilpasningsmuligheter forventes ferdigstilt i løpet av juli 2024.
Lokalene kommer i nyoppført bygg i 3. etasje med fantastisk utsikt og mye dagslys.

Moderne fasiliteter med innbydende møterom og kontorer.
Tilpasningsmuligheter etter leietakers ønske både hva angår areal og utforming.
Mulighet for flere leietakere.

Universell utforming og heis.
Kjønnsdelte garderober med wc og dusj.
Takterrasse i sør.

Gode parkeringsmuligheter.

Beliggenhet

Kontorlokaler i sentrum av Åkra langs hovedveien. Svært sentral beliggenhet med kort vei til alt av byens tilbud og fasiliteter. Skjermet plassering i 3. etasje med god utsikt.

Parkering

Offentlig parkering i kort avstand fra kontoret. Kundeparkering direkte utenfor på vestsiden av bygget.

Kontakt

Morten Velde

Stilling
Næringsmeglerfullmektig MNEF
E-post
morten@meglerhuset-rele.no
Telefon
41242278

Lurer du på noe?

"*" obligatorisk felt